Proje Detayı
Restoran Tasarım Projesi
PROJE ADI
Restoran Tasarım Projesi
TASARIM PROJELER

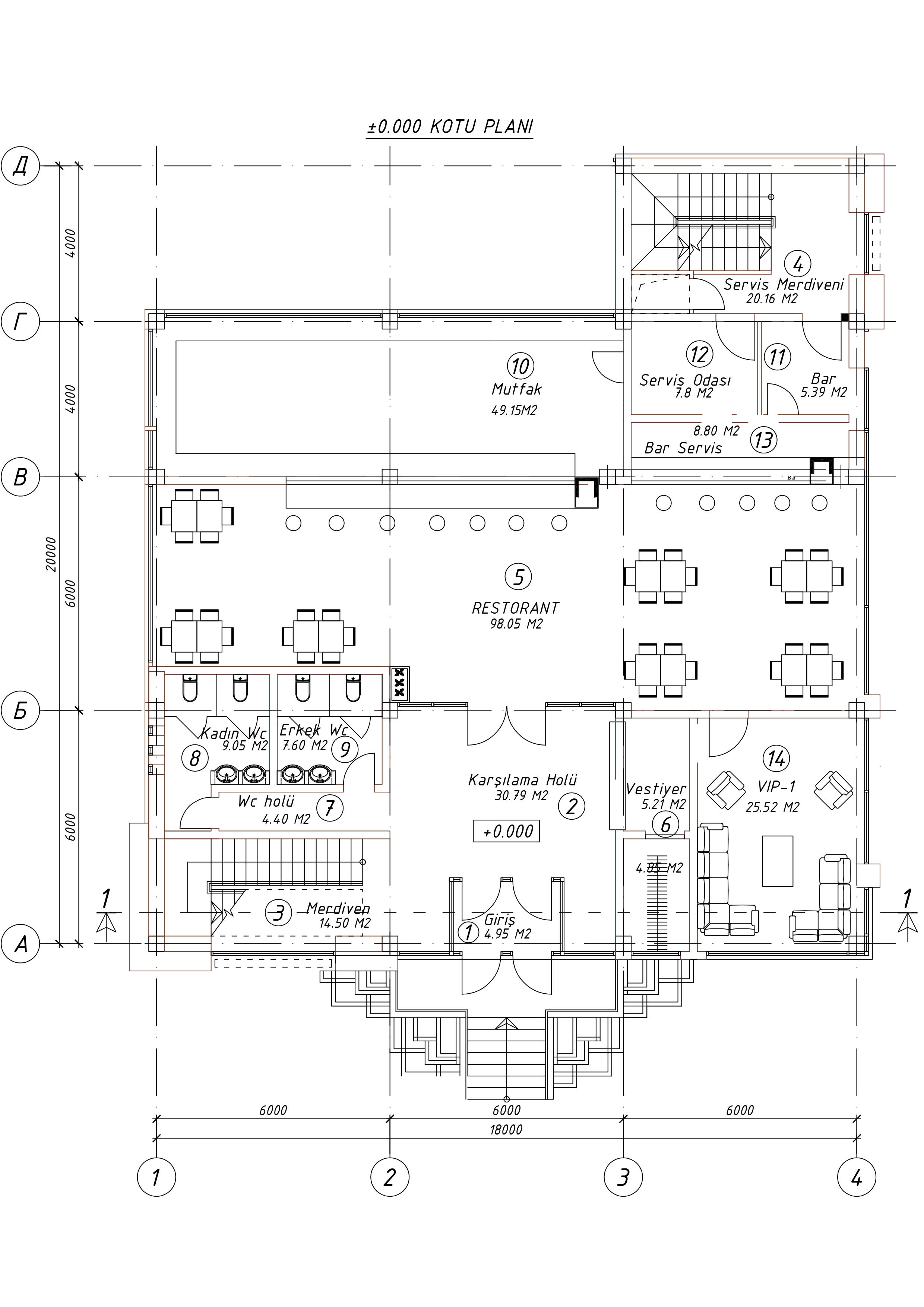
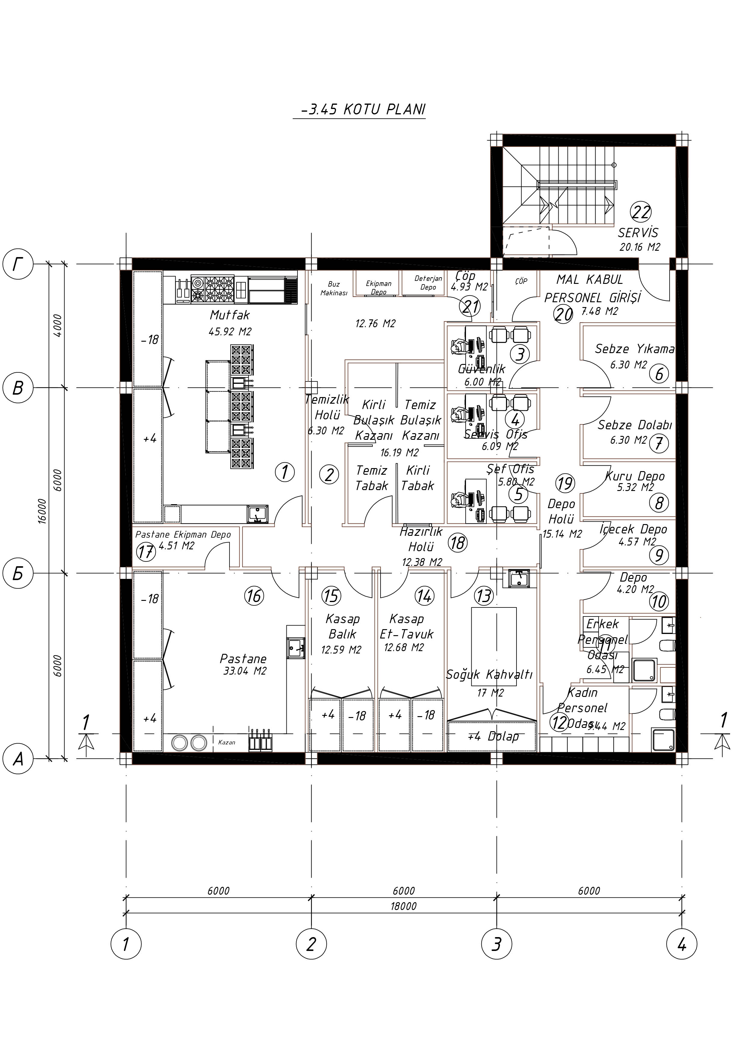
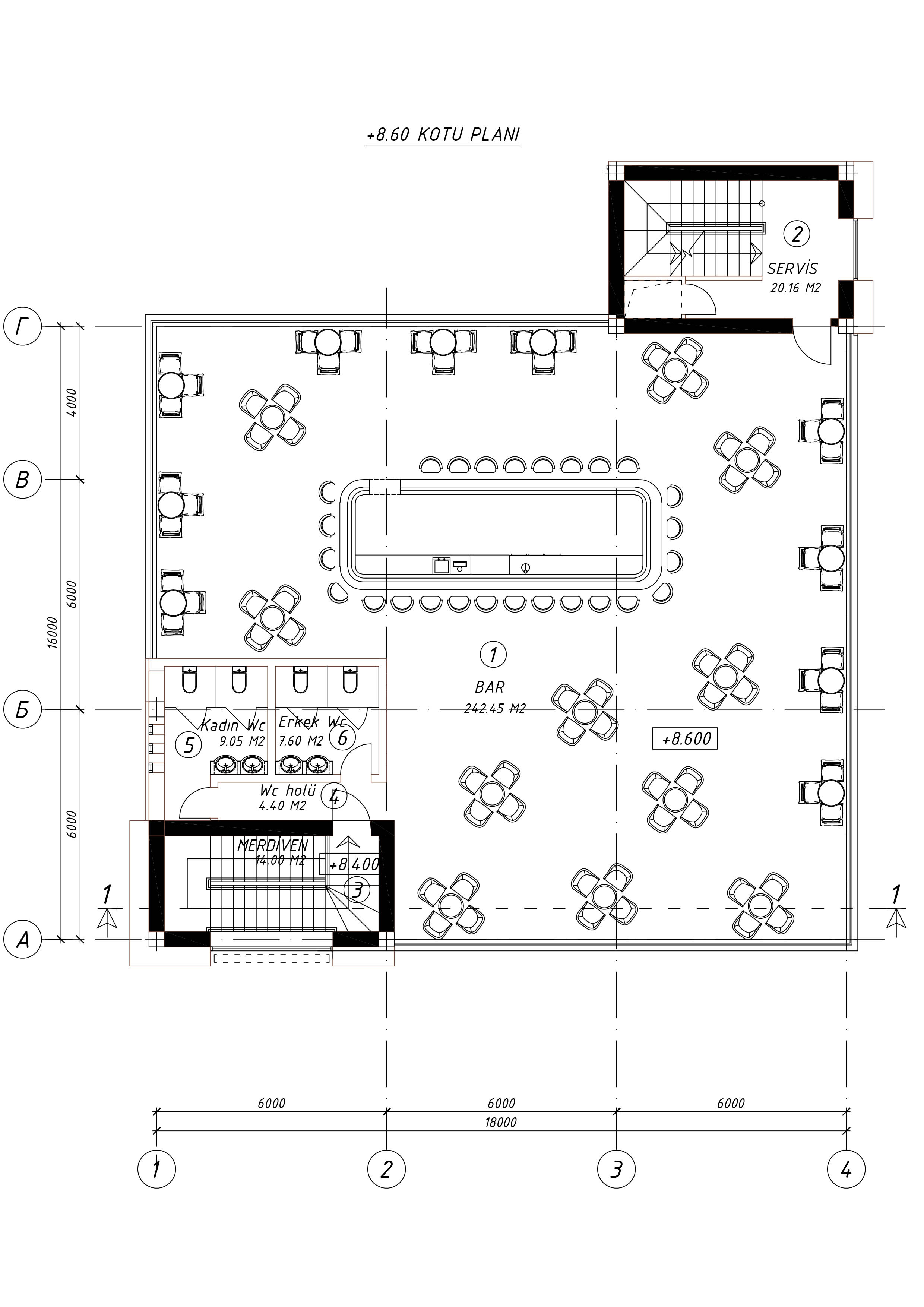
Restoran tasarım projesi, mekânın işlevsel gereksinimleri ve kullanıcı sirkülasyonu dikkate alınarak ele alınmıştır. Tasarım sürecinde, konforlu kullanım, mekânsal bütünlük ve estetik denge ön planda tutulmuş; konsept ile uyumlu, uygulanabilir bir iç mekân yaklaşımı benimsenmiştir.